Grundrisse für 3S-Fertighäuser 38°
|
| |
| Einrichtungsvorschläge für das 3S-Fertighaus 38° |
| |
| |
 |
| Erdgeschoß |
|
|
3S-Fertighaus 5-38°
Gesamtwohnfläche
Bebaute Hausfläche
Erdgeschoss
Wohnzimmer
(Sitzecke, Schränke)
Küche
(Essecke)
Gästezimmer
(Doppelbett, Regale)
Arbeitszimmer
(Schreibtisch, Schrank)
Abstellraum
WC/Dusche
Diele
Dachgeschoss
Schlafzimmer
(Doppelbett, Schränke, Sessel)
Kinderzimmer
(Bett, Schrank, Schreibtisch, Sessel)
Bad
Flur
|
107 m²
106,62 m²
78,50 m²
22,70 m²
10,28 m²
10,38 m²
8,06 m²
2,59 m²
5,24 m²
6,43 m²
21,16 m²
10,77 m²
5,60 m²
3,41 m²
|
 |
| Dachgeschoß |
|
|
| |
| |
|
|
|
|
|
| |
 |
| Erdgeschoß |
|
|
3S-Fertighaus 6-38°
Gesamtwohnfläche
Bebaute Hausfläche
Erdgeschoss
Wohnzimmer
(Sitzecke, Essecke, Schränke)
Küche
Arbeitszimmer
(Schreibtisch, Schrank)
Hobbyraum
Hauswirtschaftsraum
Badezimmer
Diele
Dachgeschoss
Schlafzimmer
(Doppelbett, Schränke, Regal)
Gästezimmer
(Doppelbett, Schrank)
Kinderzimmer
(Bett, Schrank, Schreibtisch)
Flur
Balkon (11,61 m² x 0,5)
|
128 m²
127,93 m²
89,31 m²
28,53 m²
10,85 m²
7,26 m²
5,24 m²
5,38 m²
7,41 m²
10,91 m²
11,20 m²
8,90 m²
11,47 m²
4,04 m²
5,80 m² |
 |
| Dachgeschoß |
|
|
| |
| |
|
|
|
|
|
| |
 |
| Erdgeschoß |
|
|
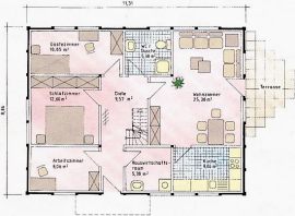
3S-Fertighaus 7-38°
Gesamtwohnfläche
Bebaute Hausfläche
Erdgeschoss
Wohnzimmer
(Sitzecke, Essecke, Schränke)
Küche
Hauswirtschaftsraum
WC/Dusche
Arbeitszimmer
(Schreibtisch, Schrank)
Schlafzimmer
(Doppelbett, Schränke)
Gästezimmer
(Bett, Schrank, Schreibtisch)
Diele
Dachgeschoss
Kinderzimmer
(Bett, Schreibtisch, Schrank, Sessel)
Kinderzimmer
(Bett, Schreibtisch, Schrank, Sessel)
Badezimmer
Abstellraum
Flur |
140 m²
140,07 m²
100,21 m²
25,38 m²
8,06 m²
5,38 m²
5,38 m²
8,06 m²
12,60 m²
10,85 m²
9,57 m²
22,96 m²
18,37 m²
4,86 m²
6,25 m²
2,35 m² |
 |
| Dachgeschoß |
|
| |
|
|
|
|
|
|
| |
| Grundrisse unverbindlich und kostenfrei
anfordern! |